Mieszkanie Kielce Szydłówek, Klonowa
Kielce / Szydłówek Pokaż na mapie ›
Odświeżone: Niedziela, 14 Grudzień, 2025 15:11
279 960 zł
11198 zł/m2
Szczegóły ogłoszenia
- Kategoria: Mieszkania / Sprzedaż
- Powierzchnia:25 m2
- Liczba pokoi:1 pokój
- Zabudowa:Inne
- Piętro :Parter
- Liczba pięter:4 piętra
- Rynek:Pierwotny
- Rok budowy:2026
- Sprzedaż:Pośrednik
- Cena: 279 960 zł / 11198 zł/m2
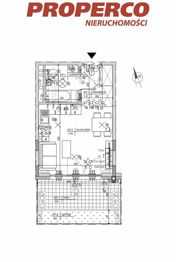
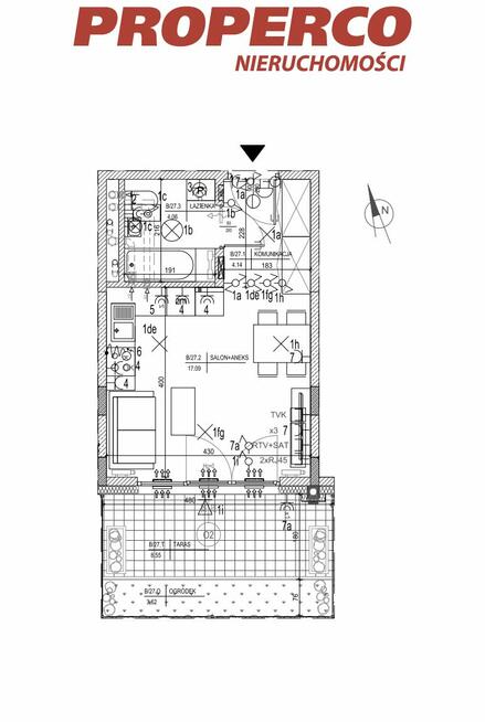
Opis oferty
Na sprzedaż zespół pokojowy, o pow. 25,29 m2, dostępny na parterze budynku zlokalizowanego w nowoczesnej inwestycji położonej przy ul. Klonowej, w sąsiedztwie Zalewu Kieleckiego i lasu/parku nad zalewem. Mieszkanie jest oferowane w standardzie deweloperskim.W skład mieszkania wchodzi:
- salon z aneksem kuchennym (17,09 m2),
- łazienka (4,06 m2),
- komunikacja (4,14 m2).
Do lokalu przynależy taras o pow. 8,55 m2 oraz ogródek 3,62 m2.
Ogrzewanie i ciepła woda z sieci miejskiej.
Inwestycja zlokalizowana jest w spokojnej części Kielc, blisko terenów rekreacyjnych. Składać się będzie z 3 budynków, w których łącznie zaprojektowano 47 mieszkań, 15 zespołów pokojowych i 2 lokale usługowe.
Budynki zostaną wyposażone w cichobieżne windy. Adres strony internetowej, o którym mowa w art. 19a ust. 3 ustawy z dnia 20 maja 2021 r. o ochronie praw nabywcy lokalu mieszkalnego lub domu jednorodzinnego oraz Deweloperskim Funduszu Gwarancyjnym to becher(kropka)pl. Adres strony został ujęty fonetycznie.
Możliwość zakupu komórki lokatorskiej w cenie 6000 PLN/m2.
Termin zakończenia inwestycji: IV kwartał 2026 r.
>> Kupujący zwolniony z kosztów obsługi biura i podatku PCC
Numer oferty: PRP-MS-75465
Sprawdź zainteresowanie tym ogłoszeniem
Wyświetlenia
Data dodania
Ostatnio widziany
Obserwujących
Wysłane zapytania
Odsłony telefonu
Powiadom o podobnych ogłoszeniach
Lokalizacja: Kielce
Kategoria: Nieruchomości » Mieszkania » Sprzedaż
Cena: od 238000 zł do 322000 zł Powierzchnia : od 21 m2 do 29 m2
Chcę otrzymywać powiadomienia o nowych ofertach
Krzysztof Jakubowski
Konto firmowe
Na Lento.pl od 22 gru 2017
Strona użytkownika
- Wypromuj ogłoszenie
- Zgłoś naruszenie
- Drukuj ulotkę
- Edytuj/usuń ogłoszenie
- Udostępnij ogłoszenie
- Dodaj na Facebook













