Mieszkanie Kielce Pod Telegrafem
Kielce / Pod Telegrafem Pokaż na mapie ›
Odświeżone: Poniedziałek, 13 Kwiecień, 2026 13:30
892 836 zł
10888 zł/m2
Szczegóły ogłoszenia
- Kategoria: Mieszkania / Sprzedaż
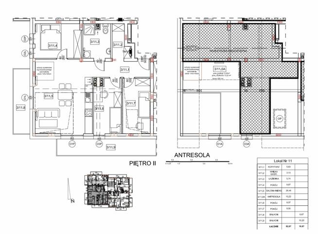
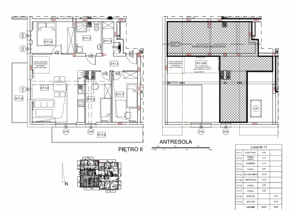
- Powierzchnia:82 m2
- Liczba pokoi:5 i więcej pokoi
- Zabudowa:Apartamentowiec
- Piętro :2 piętro
- Liczba pięter:2 piętra
- Rynek:Pierwotny
- Rok budowy:2026
- Sprzedaż:Pośrednik
- Cena: 892 836 zł / 10888 zł/m2
Opis oferty
Na sprzedaż nowe 5 pokojowe mieszkanie o powierzchni 82,67 m2 zlokalizowane na II piętrze w kameralnej inwestycji deweloperskiej w dzielnicy Pod Telegrafem. Lokal składa się z salonu z aneksem kuchennym, 3 sypialni, antresoli (5 pokój) korytarza, wnęki gospodarczej, łazienki oraz 2 balkonów o powierzchni 6,67 m2 i 10,2 m2. Mieszkanie będzie oddane w stanie deweloperskim. Ogrzewanie i ciepła woda z własnej kotłowni gazowej dla całego budynku. Ekspozycja okien na południe oraz zachód.Budynek zlokalizowany w zielonej spokojnej okolicy jednocześnie w niedalekiej odległości do licznych punktów usługowych większych sklepów spożywczych typu Biedronka, Stokrotka, Lidl oraz punktów usługowych.
Planowany termin oddania inwestycji 31.12.2026 r.
Kontakt: 577 - pokaż numer telefonu -
Oferta wysłana z systemu Galactica Virgo
Numer oferty: ASN-MS-2133-1
Sprawdź zainteresowanie tym ogłoszeniem
Wyświetlenia
Data dodania
Ostatnio widziany
Obserwujących
Wysłane zapytania
Odsłony telefonu
Powiadom o podobnych ogłoszeniach
Lokalizacja: Kielce
Kategoria: Nieruchomości » Mieszkania » Sprzedaż
Cena: od 759000 zł do 1027000 zł Powierzchnia : od 70 m2 do 94 m2
Chcę otrzymywać powiadomienia o nowych ofertach
- Wypromuj ogłoszenie
- Zgłoś naruszenie
- Drukuj ulotkę
- Edytuj/usuń ogłoszenie
- Udostępnij ogłoszenie
- Dodaj na Facebook












