Mieszkanie Kielce Osiedle na Stoku
Kielce Pokaż na mapie ›
Dodane: Środa, 04 Luty, 2026 15:29
389 000 zł
12967 zł/m2
Szczegóły ogłoszenia
- Kategoria: Mieszkania / Sprzedaż
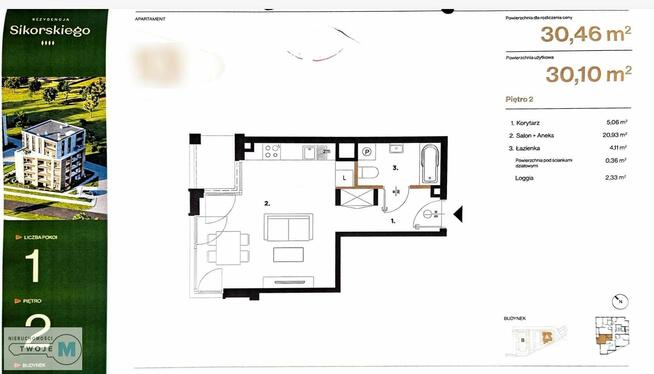
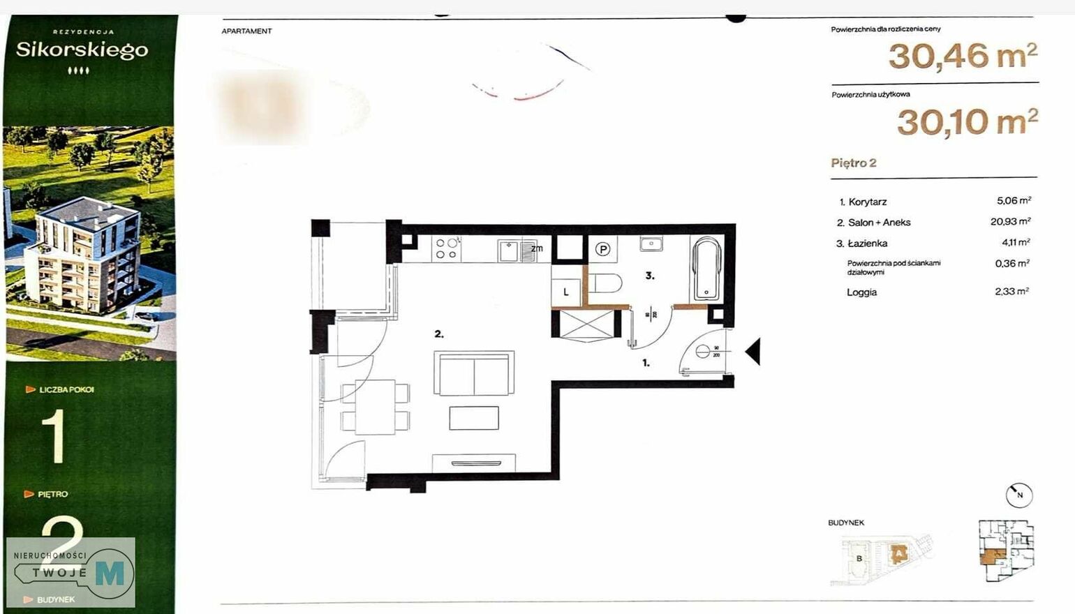
- Powierzchnia:30 m2
- Liczba pokoi:1 pokój
- Zabudowa:Apartamentowiec
- Piętro :2 piętro
- Liczba pięter:5 pięter
- Rynek:Wtórny
- Rok budowy:2025
- Sprzedaż:Pośrednik
- Cena: 389 000 zł / 12967 zł/m2
Opis oferty
TYLKO U NAS!Biuro Nieruchomości TWOJE M
Prezentuje na sprzedaż
Kawalerkę z 2025 roku w Rezydencji Sikorskiego
z miejscem w garażu podziemnym oraz balkonem.
Prezentujemy Państwu na sprzedaż przestronne, komfortowe 1 pokojowe mieszkanie w stanie deweloperskim o powierzchni użytkowej 30,10 m², usytuowane na 2 piętrze i zlokalizowane w doskonałej lokalizacji Kielc Osiedla Na Stoku ulica Sikorskiego.
Atuty mieszkania:
-balkon typu loggia,
-2 piętro,
-klimatyzacja,
-stan deweloperski,
-rok budowy 2025,
-miejsce postojowe w garażu podziemnym,
-klimatyzacja
-przystosowany dla osób niepełnosprawnych,
-ogrzewanie i ciepła woda z sieci miejskiej.
Na powierzchnię mieszkania składają się:
salon z aneksem kuchennym o pow. 20,93 m2
łazienka o pow. 4,11 m2
przedpokój o pow. 5, 06 m2
Do mieszkania przynależy balkon typu loggia o pow. 2,33 m2, a także miejsce postojowe w garażu podziemnym płatne dodatkowo 49 000 złotych.
Mieszkanie w stanie deweloperskim z dużymi przeszkleniami, które zapewniają dużo naturalnego światła. Mieszkanie wyposażone w instalację do klimatyzacji, a także ekran wideo domofon.
Budynki wykonane z gustownej bryły w naturalnych barwach elewacji (szarości i brązy) oraz eleganckich balustrad wykonanych z połączenia szkła i stali. Rezydencja Sikorskiego jest przystosowana dla osób niepełnosprawnych, dla których przygotowano 10 dedykowanych miejsc postojowych oraz szerokie windy zapewniające swobodne poruszenie się z parkingów, garaży do mieszkań. Osiedle Rezydencję Sikorskiego stanowią cztery budynki mieszkalne.
Doskonała lokalizacja - Osiedle Na Stoku. Na osiedlu znajduje się żłobek, szkoła, przedszkole, przystanek, liczne punkty usługowe, Kufland, drogerie, ścieżki rowerowe, tereny rekreacyjne. Mieszkanie ze względu na strategiczne położenia sprawdzi się doskonale jako inwestycja zarówno pod najem długo i krótko terminowy.
CENA: 360 000 zł
do negocjacji
Serdecznie zapraszam na prezentację
Opiekun oferty:
Daria Dulęba
Jeżeli chcesz bezpiecznie przeprowadzić transakcję kupna, koniecznie skorzystaj z pomocy profesjonalnego biura nieruchomości, które ma doświadczenie w obrocie nieruchomościami, zna rynek i współpracuje z kancelarią notarialną. We współpracy z radcą prawnym przygotowujemy umowę przedwstępną, uczestniczymy w negocjacjach, pomagamy uregulować stan prawny nieruchomości, kompletujemy wszystkie dokumenty do aktu notarialnego, uczestniczymy w akcie notarialnym, wykonujemy protokół zdawczo odbiorczy. Tę kompleksową usługę wykonamy na preferencyjnych warunkach.
Współpracujemy z najlepszymi ekspertami finansowymi w Kielcach, którzy znajdą dla Państwa najtańszy kredyt hipoteczny i przeprowadzą sprawnie całą procedurę kredytową. Dzięki współpracy ekspertów proces kredytowy jest przeprowadzony skutecznie, a Państwa zaangażowanie co do formalności jest ograniczone do minimum.
Oferta wysłana z systemu Galactica Virgo
Numer oferty: TWJ-MS-2479-1
Powiadom o podobnych ogłoszeniach
Lokalizacja: Kielce
Kategoria: Nieruchomości » Mieszkania » Sprzedaż
Cena: od 330500 zł do 447500 zł Powierzchnia : od 26 m2 do 35 m2
Chcę otrzymywać powiadomienia o nowych ofertach

Biuro Twoje M
Konto firmowe
Na Lento.pl od 04 lip 2018
Strona użytkownika
- Wypromuj ogłoszenie
- Zgłoś naruszenie
- Drukuj ulotkę
- Edytuj/usuń ogłoszenie
- Udostępnij ogłoszenie
- Dodaj na Facebook









