Mieszkanie Kielce, Maciejówka
Kielce Pokaż na mapie ›
Odświeżone: Sobota, 28 Marzec, 2026 11:38
638 552 zł
7602 zł/m2
Szczegóły ogłoszenia
- Kategoria: Mieszkania / Sprzedaż
- Powierzchnia:84 m2
- Liczba pokoi:4 pokoje
- Zabudowa:Inne
- Piętro :Parter
- Liczba pięter:Parterowy
- Rynek:Pierwotny
- Rok budowy:2024
- Sprzedaż:Pośrednik
- Cena: 638 552 zł / 7602 zł/m2
Opis oferty
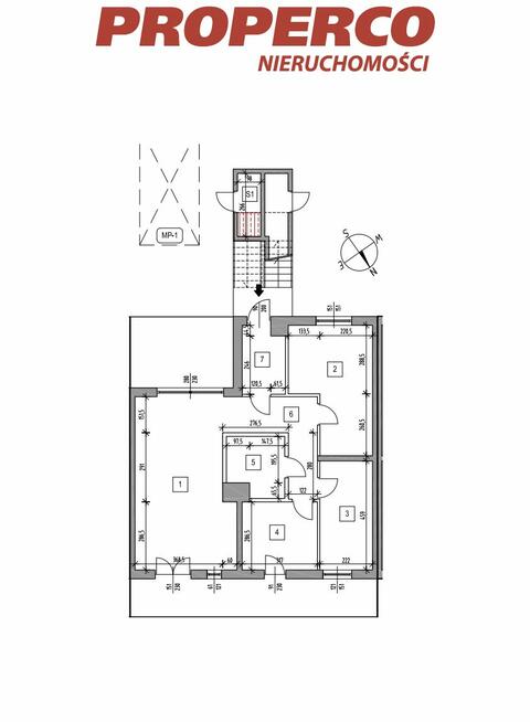
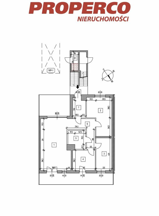
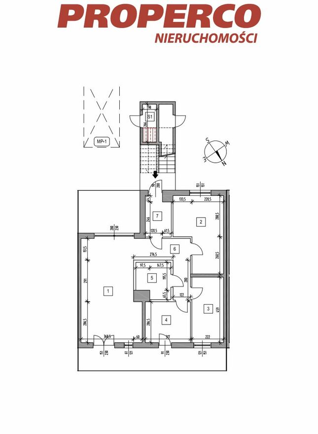
Nowoczesny apartament o powierzchni użytkowej 84,02m2, wraz z ogródkiem i tarasem , zlokalizowany w Kielcach-Maciejówce. Mieszkanie znajduje się na parterze nowego budynku, usytuowanego na kameralnym osiedlu domów w zabudowie szeregowej, w pobliżu terenów zielonych. W trosce o komfort i bezpieczeństwo mieszkańców teren będzie ogrodzony, monitorowany całodobowo przy pomocy systemu kamer.W skład mieszkania wchodzą:
- salon z aneksem kuchennym 29,83 m2,
- sypialnia/pokój 9,08 m2,
- sypialnia/pokój 10,18 m2,
- sypialnia/pokój 15,95 m2
- łazienka 5,77 m2,
- hol 8,20 m2,
- wiatrołap 5,01 m2.
Do każdego lokalu przynależy naziemne miejsce parkingowe w cenie mieszkania. Każdy lokal będzie wyposażony w kocioł gazowy kondensacyjny do podgrzania wody użytkowej i na potrzeby centralnego ogrzewania.
Termin zakończenia inwestycji: IV kwartał 2024 r.
Osiedle składa się z trzydziestu apartamentów w zabudowie szeregowej, z funkcjonalnymi rozkładami pomieszczeń. Budynki zaprojektowane zostały w sposób ułatwiający dostęp do nich osobom niepełnosprawnym.
Duże tarasy przynależne do mieszkań na kondygnacji pierwszej oraz przestronne ogródki znajdujące się na parterze tworzą urokliwe, prywatne miejsca do odpoczynku i relaksu. Ciepły wizerunek osiedla jest zasługą odpowiedniego doboru materiałów elewacyjnych i ich kolorów. Na elewacjach dominują biele i brązy tynków. Zapraszamy do kontaktu z naszym agentem.
>>Kupujący zwolniony z kosztów obsługi biura i podatku PCC
Numer oferty: PRP-MS-73799
Sprawdź zainteresowanie tym ogłoszeniem
Wyświetlenia
Data dodania
Ostatnio widziany
Obserwujących
Wysłane zapytania
Odsłony telefonu
Powiadom o podobnych ogłoszeniach
Lokalizacja: Kielce
Kategoria: Nieruchomości » Mieszkania » Sprzedaż
Cena: od 543000 zł do 734500 zł Powierzchnia : od 71 m2 do 97 m2
Chcę otrzymywać powiadomienia o nowych ofertach
Jacek Kotlarz
Konto firmowe
Na Lento.pl od 22 gru 2017
Strona użytkownika
- Wypromuj ogłoszenie
- Zgłoś naruszenie
- Drukuj ulotkę
- Edytuj/usuń ogłoszenie
- Udostępnij ogłoszenie
- Dodaj na Facebook



























