Mieszkanie 3 pok.+ 660 m2 działki
Kielce Pokaż na mapie ›
Odświeżone: Sobota, 31 Styczeń, 2026 11:13
275 000 zł
3929 zł/m2
Szczegóły ogłoszenia
- Kategoria: Mieszkania / Sprzedaż
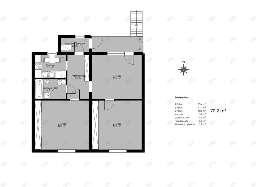
- Powierzchnia:70 m2
- Liczba pokoi:3 pokoje
- Zabudowa:Dom
- Tech. budowy:Inne
- Piętro :1 piętro
- Liczba pięter:1 piętro
- Rynek:Wtórny
- Rok budowy:1992
- Sprzedaż:Pośrednik
- Inf. dodatkowe:Balkon
- Cena: 275 000 zł / 3929 zł/m2
Opis oferty
Oferta dotyczy mieszkania 3 pokojowego oraz działki o powierzchni 660m.kw.
Jest to 1/3 większej nieruchomości, w skład której wchodzi 3
mieszkaniowy budynek oraz działka o powierzchni 1980 m2.
Każdy ze współwłaścicieli dysponuje 1/3 udziału we własności
nieruchomości.
Nieruchomość położona jest przy ul. Biesak, z dojazdem od ul.
Krakowskiej bądź przez Pakosz.
Budynek wybudowany został w 1992r.
Ma 3 mieszkania, z niezależnymi wejściami od zewnątrz budynku.
Oferowane do sprzedaży mieszkanie znajduje się na piętrze budynku.
Ma 70,2 m.kw. powierzchni i składa się z następujących
pomieszczeń:
-3 duże pokoje o powierzchniach: 18,8, 17,1 i 15,4 m2,
-kuchnia 5,0 m2,
-łazienka z ubikacją 4,3 m2,
-przedpokój 6,8 m2,
-wiatrołap 2,8 m2 powierzchni.
Do mieszkania wchodzi się po zewnętrznych schodach.
W wiatrołapie znajduje się piec c.o. na drewno lub węgiel.
Wodę ciepłą zapewnia elektryczny bojler 120 l zwieszony w
łazience.
Woda bieżąca pochodzi z miejskiego wodociągu a kanalizacja
podłączona jest do szamba obsługująca wszystkie 3 mieszkania.
Stan mieszkania pozwala na jego dalsze użytkowanie jedynie po
odświeżeniu.
Do sprzedawanego lokalu należą 2 komórki: 1. pod schodami
wejściowymi, 2. niska, pod cokołem budynku.
3. komórka w piwnicy użytkowana jest wspólnie z innymi
mieszkańcami.
Działkę mieszkańcy użytkują w ten sposób, że każdy ma
wydzieloną jej część.
Do oferowanego lokalu należy blaszany garaż, stanowisko postojowe na
samochód, ogródek warzywny oraz ogródek rekreacyjny.
Cena nieruchomości jest bardzo atrakcyjna- bo to tylko 275 tys. zł.
Do kosztów jej nabycia należy doliczyć prowizję pośrednika w
wysokości 1% wynegocjowanej ceny.
Zachęcam do kontaktu i bliższego poznania oferowanej nieruchomości.
Zadzwoń- przekażę dodatkowe informacje i prześlę wszystkie
zdjęcia.
Zakup z moim pośrednictwem to PEWNOŚĆ I GWARANCJA SPOKOJNEGO,
PRZEMYŚLANEGO WYBORU, DOBREJ I UCZCIWEJ CENY, OSZCZĘDNOŚCI CZASU
ORAZ LEGALNOŚCI TRANSAKCJI.
Pomogę we wszystkich formalnościach od początku aż do finalizacji
transakcji.
ZE MNĄ WYBIERZESZ IDEALNĄ NIERUCHOMOŚĆ.
Robert Dziewięcki
Sprawdź zainteresowanie tym ogłoszeniem
Wyświetlenia
Data dodania
Ostatnio widziany
Obserwujących
Wysłane zapytania
Odsłony telefonu
Powiadom o podobnych ogłoszeniach
Lokalizacja: Kielce
Kategoria: Nieruchomości » Mieszkania » Sprzedaż
Cena: od 234000 zł do 316500 zł Powierzchnia : od 60 m2 do 81 m2
Chcę otrzymywać powiadomienia o nowych ofertach
- Wypromuj ogłoszenie
- Zgłoś naruszenie
- Drukuj ulotkę
- Edytuj/usuń ogłoszenie
- Udostępnij ogłoszenie
- Dodaj na Facebook




























