4-POKOJOWY APARTAMENT Z ANTRESOLĄ-BUKÓWKA
Kielce Pokaż na mapie ›
Dodane: Sobota, 27 Wrzesień, 2025 17:54
892 836 zł
10888 zł/m2
Szczegóły ogłoszenia
- Kategoria: Mieszkania / Sprzedaż
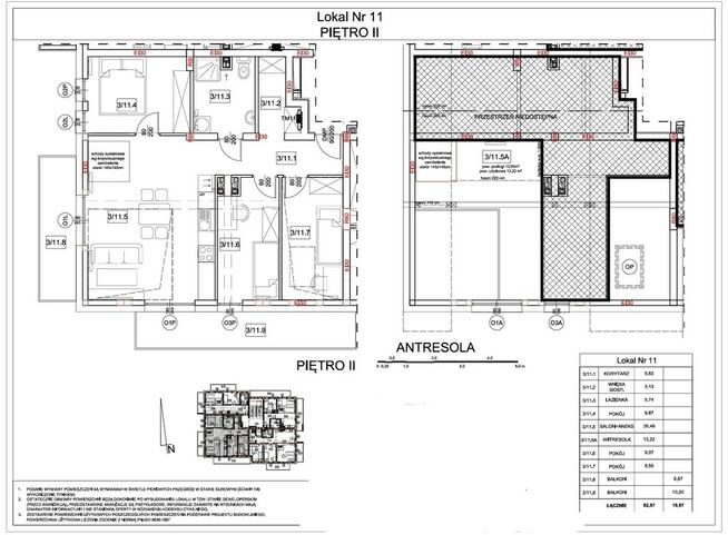
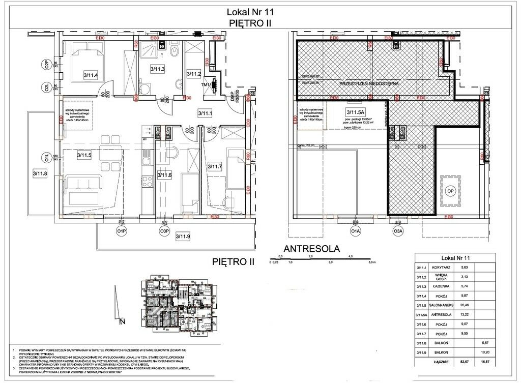
- Powierzchnia:82 m2
- Liczba pokoi:4 pokoje
- Zabudowa:Apartamentowiec
- Tech. budowy:Inne
- Piętro :2 piętro
- Liczba pięter:2 piętra
- Rynek:Pierwotny
- Rok budowy:2025
- Sprzedaż:Pośrednik
- Inf. dodatkowe:Balkon
- Cena: 892 836 zł / 10888 zł/m2
Opis oferty
OFERTA DEWELOPERSKA-BEZ PODATKU PCCM 11
SZCZEGÓŁOWE PARAMETRY MIESZKANIA W KOLEKCJI ZDJĘĆ
Przedstawiamy Państwu nową inwestycję -nowoczesny,kameralny budynek
mieszkalny ,zlokalizowany w spokojnej części Kielc w sąsiedztwie
stoku narciarskiego Telegraf.
Nowoczesna forma budynku, duże szklane płaszczyzny okien, ażurowe
wykończenia balkonów, efektowne okładziny z najlepszych
materiałów to znaki rozpoznawcze tej inwestycji.
Kolorystyka budynku utrzymana będzie w barwach eleganckiej bieli,
klasycznej szarości oraz kontrastującymi z nimi akcentami antracytu.
Mieszkańcy będą mieszkać w otoczeniu niskiej zabudowy
jednorodzinnej.Oferta idealna dla osób ceniacych sobie spokój, przy
jednoczesnym szybkim dostępie do centrum miasta.
W pobliżu znajdują się pełna infrastruktura m.in. przedszkola,
szkoły, sklepy, ścieżki rowerowe oraz pętla
autobusowa,lodowisko,stok narciarski.
Niewatpliwie jest to lokalizacja z potencjałem,położenie w pobliżu
natury, w drugiej lini zabudowy czyni to miejsce idealnym dla rodzin,
singli i osób prowadzących aktywny tryb życia.Z osiedla bez
problemu dostaniemy się do najważniejszych punktów miasta. W
pobliżu znajdują się szkoła podstawowa nr 8, sklepy, lodowisko
oraz stok narciarski
Szczegóły inwestycji :Liczba kondygnacji: 4 kondygnacje: 3 nadziemne
oraz 1 podziemnaLiczba mieszkań: 12mieszkania na 2 pietrze posiadaja
antresolę uzytkowa,która nie jest wliczina w cene
mieszkań(dodatkowa przestrzeń z przeznaczeniem pod sypialnię,
biuro, garderobę,pokój dla dziecka,sołownię) Ogrzewanie: gazowe -
własna kotłowniaUdogodnienia: 12 miejsc postojowych w hali
garażowej na poziomie -1 oraz 2 zewnetrznekomórki lokatorskie
zlokalizowane w hali garazowe
Jakość wykonania i doświadczenie:Sprawdzone technologie i trwałe
materiały: Każdy etap budowy realizowany jest z wykorzystaniem
nowoczesnych i solidnych materiałów, które gwarantują estetykę
oraz wieloletnią trwałość inwestycji.Profesjonalizm poparty
doświadczeniem: Inwestycja została zaprojektowana i realizowana
przez zespół ekspertów z ponad 10-letnią praktyką w branży, co
przekłada się na najwyższy standard i niezawodność.TERMIN
ZAKOŃCZENIA INWESTYCJI -GRUDZIEN 2026DLA ZAPRACOWANYCH OFERUJEMY
KOMPLEKSOWE WYKOŃCZENIE MIESZKANIA POD KLUCZ.Za koordynację i sukces
całego procesu odpowiadają wysokiej klasy PROJEKTANCI-specjaliści z
wieloletnim doświadczeniem w branży.
Pod naszym nadzorem z naszym zespołem przeprowadzimy Państwa przez
każdy etap inwestycji w sposób zapewniający komfort i spokój.
Architekci zaprojektują wnętrza, dobiorą materiały, meble i
dodatki a nasz zespół zapewni ekipę i pełny nadzór nad pracami.
Współpraca z naszymi profesjonalistami, pozwoli Państwu na
zaoszczędzenie czasu, optymalizację kosztów i bezproblemowe
przejście przez cały proces inwestycyjny.
Jeśli zainteresowała Cię ta oferta, zadzwoń i umów się na
prezentację !!!
mówimy po angielsku - we speak English
mówimy po rosyjsku - мы говорим по-русски
mówimy po francusku - on parle francais
mówimy po niemiecku - wir sprechen deutsch
Informacje dotyczące opisu nieruchomości podane są przez
właściciela, mają charakter wyłącznie informacyjny i mogą
podlegać aktualizacji.
Oferta dotycząca nieruchomości stanowi zaproszenie do rokowań
zgodnie z art. 71 Kodeksu Cywilnego i nie stanowi oferty określonej w
art. 66 i następnych KC.
DEVELOPER OFFER - NO PCC TAX
We present a new development – a modern, intimate residential
building located in a quiet part of Kielce, near the Telegraf ski
slope.
The building's modern design, large glass windows, openwork balcony
finishes, and attractive cladding made of the finest materials are the
hallmarks of this development.
The building will feature elegant white, classic gray, and contrasting
anthracite accents.
Residents will live in a neighborhood of low-rise single-family homes.
This offer is ideal for those who value peace and quiet while still
enjoying quick access to the city center.
Nearby, you'll find comprehensive infrastructure, including
kindergartens, schools, shops, bike paths, a bus terminus, an ice
rink, and a ski slope. This is undoubtedly a location with potential.
Its proximity to nature and its location in the second building line
make it ideal for families, singles, and those leading an active
lifestyle. The development offers easy access to the city's most
important attractions. Nearby are Primary School No. 8, shops, an ice
rink, and a ski slope.
Project Details:
Number of Floors: 4, 3 above ground and 1 underground
Number of Apartments: 12
Apartments on the second floor have a usable mezzanine, which is not
included in the price (additional space for a bedroom, office, walk-in
closet, children's room, or living room).
Heating: Gas - private boiler room
Amenities:
12 parking spaces in the garage on level -1 and 2 outdoor storage
units located in the garage.
Construction Quality and Experience:
Proven Technologies and Durable Materials: Each stage of construction
is carried out using modern and durable materials, ensuring aesthetics
and long-term durability of the investment. Professionalism backed by
experience: The project was designed and implemented by a team of
experts with over 10 years of industry experience, ensuring the
highest standards and reliability.
COMPLETION DATE - DECEMBER 2026
FOR BUSY PEOPLE, WE OFFER COMPREHENSIVE TURNKEY APARTMENT FINISHING.
High-class DESIGNERS – specialists with years of industry experience
– are responsible for the coordination and success of the entire
process.
Under our supervision, we and our team will guide you through every
stage of the project, ensuring comfort and peace of mind.
The architects will design the interiors, select the materials,
furniture, and accessories, and our team will provide the crew and
full supervision of the work.
Working with our professionals will allow you to save time, optimize
costs, and seamlessly navigate the entire investment process.
If you are interested in this offer, call us and schedule a viewing!
logerinvest.pl Information
We speak English
We speak Russian
We speak French
We speak German
Information regarding the property description is provided by the
owner and is for informational purposes only and may be updated.
This offer for the property constitutes an invitation to negotiations
pursuant to Article 71 of the Civil Code and does not constitute an
offer specified in Article 66 et seq. of the Civil Code.
Sprawdź zainteresowanie tym ogłoszeniem
Wyświetlenia
Data dodania
Ostatnio widziany
Obserwujących
Wysłane zapytania
Odsłony telefonu
Powiadom o podobnych ogłoszeniach
Lokalizacja: Kielce
Kategoria: Nieruchomości » Mieszkania » Sprzedaż
Cena: od 759000 zł do 1027000 zł Powierzchnia : od 70 m2 do 94 m2
Chcę otrzymywać powiadomienia o nowych ofertach
Biuro Obsługi
Konto firmowe
Na Lento.pl od 25 cze 2013
Strona użytkownika
- Wypromuj ogłoszenie
- Zgłoś naruszenie
- Drukuj ulotkę
- Edytuj/usuń ogłoszenie
- Udostępnij ogłoszenie
- Dodaj na Facebook

























